扶梯常见故障排除方法、步骤
2019-03-21 14:17:07来源:广西快申电梯1. 扶手带掉沫的检查方法和处理过程
检查方法:扶梯运行时,发现扶手带有掉沫现象。停止扶梯,扒开扶手带,观察扶手导轨端部槽内以及180度轮群处槽内是否有细沫积存。
处理过程:
1) 观察扶手导轨连接处的过渡是否平滑,不应该有大于0.2mm的台阶和大于0.3mm的缝隙,若有进行调整。若调整后还存在台阶,则用角磨机或用锉将突出位置修磨;
2) 扶手导轨内部的连接件不应超过扶手导轨顶面,扶手导轨应该平滑连接。若局部导轨缺损或有异常突起,进行修补或者更换;
3) 打开扶梯上部内盖板,运行扶梯,观察摩擦轮与扶手带的摩擦情况,如果扶手带运行时出现跑偏按照调整扶手带跑偏的方法进行调整。
4) 调整完毕后将扶手导轨端部及180度轮群清理干净;
检查方法:运行自动扶梯
1) 观察扶手带运动是否偏心;
2) 扶手带与出入口橡胶是否有摩擦;
3) 扶手带出入口橡胶是否变形;
4) 扶手带出入口开关是否有动作迹象或者已经动作;
5) 用手压扶手带出入口橡胶,大约2kgf的力,观察开关是否动作,松开手后出入口橡胶应该自动复位。
处理过程:
1) 打开摩擦轮处上方内盖板,观察扶梯上行时扶手带运行轨迹;
2) 查看摩擦轮是否切带,若切带调节导向轮群H、F、G三点(H点适当加减垫片),至轮群托轮水平;(参照图1)
3) 刮出入口底部时,调节托轮I至水平。
4) 调整扶手带导轨的水平度以及玻璃的垂直度。

图1 扶手带导向轮、托轮
1. 梯级跑偏的处理过程
运行自动扶梯一周以上,在上下梳齿板处观察梯级是否刮梳齿,若有摩擦声说明梯级刮梳齿。
a 梳齿板偏移
1) 将梳齿板卸下;
2) 将梳齿板摆正后将螺钉紧固
b 个别梯级刮梳齿,调整方法如下:
1) 将扶梯下部踏板打开,插入检修盒;
2) 将刮梳齿的梯级做好记号并点动至下部折返处;
3) 将梯级向反方向微调,与上下梯级梯级线对齐;
4) 将调好梯级点动至梳齿板处观察梳齿是否刮梯级;
5) 调整完毕将梯级点动回来并紧固,恢复并运行。
c 所有梯级都刮梳齿,调整方法如下:
1) 打开前沿板左右的内盖板;
2) 通过前沿板滑轨的横向内六角螺栓1(参照图2)调整顶丝来调整前沿板左右移动,将另一侧内六角螺栓也做相应的旋转,移动梳齿板使其在两梯级线中间;
3) 运行自动扶梯一周以上,观察梯级与梳齿啮合情况,无异常后将扶梯复
原,恢复运行。

图2 梯级与梳齿的调整
1. 扶梯梯级刮围裙板的处理方法
处理方法(参照图3):
1) 运行扶梯,确认发出声响的位置;
2) 停止电梯运行,拆下发出声响位置的内盖板;
3) 用17叉口扳手松螺母2,紧螺母1,围裙板向A方向移动,使梯级与围裙板
之间的缝隙增大(保证梯级与围裙板之间缝隙单侧不大于4mm,两侧之和不大于7mm);
用17叉口扳手松螺母1,紧螺母2,围裙板向B方向移动,使梯级与围裙板之间的缝隙减小(保证梯级与围裙板之间缝隙单侧不大于4mm,两侧之和不大于7mm);
4) 运行扶梯,观察声响是否还存在,若存在继续调整,若不存在,将内盖板复
原,恢复电梯运行。

图3 梯级刮围裙板
1. 扶梯梯级运行过程中各部位噪音的检查和排除方法
扶梯运行中出现的噪音有以下几个方面:
1) 梯级刮围裙板;
2) 梯级钩刮紧急导轨;
3) 梯级导轨有异物和导轨有台阶;
4) 梯级链条链轮有损;
5) 梯级链条涨紧不一;
6) 梯级固定螺丝不牢固;
调整方法:
1) 调整围裙板螺母,根据实际情况进行围裙板与梯级之间间隙的调整,保证梯级与围裙板之间缝隙单侧不大于4mm,两侧之和不大于7mm;
2) 将刮紧急导轨的梯级卸下,把梯级钩的角度适当改变;
3) 连续卸下3-4个梯级,检查导轨异物并清理;修磨导轨台阶处;
4) 链条轴有锈迹应及时清理掉,防止拉伸不开。链轮有损坏应及时更换;
5) 两条链条涨紧不一时,可调整涨紧装置达到两链条涨紧一致;
6) 紧固螺丝不牢固的梯级;
2. 扶梯梯级运行到转弯处出现台阶感的处理方法
检查项目:
1) 运行的直线导轨变形或左右导轨不在同一个平面位置上;
2) 梯级链条与梯级轴缺油或梯级链左右拉伸不一致;
3) 主驱动链条位伸或大小链轮的位置偏差(不在同一个平面上),引起运行跳动;
4) 导轨接缝处不平整,或有错位;导轨表面有积尘或污垢;
处理方法:
1) 校正导轨或予以调整;
2) 定期清除积尘或污垢,并上油予以润滑;
3) 校正驱动链条使其具有一定的涨紧度,或更换已坏的链轮;
4) 调整、打磨、清洗、润滑;
3. 扶梯梯级运行位置不同而与围裙板的距离变化处理方法
首先打开踏板,卸下防护罩,插上检修盒,点动运行自动扶梯上、下行,观察梯级是否刮梳齿,如果梯级刮梳齿,依次对梯级和梳齿进行调整,保证梳齿与梯级均无刮碰并运行一周;
然后观察梯级与围裙板之间的间隙,用尖尺测量梯级与围裙板间隙单侧不大于4mm,两侧之和不大于7mm,对尺寸不符的位置进行调节,使梯级与围裙板尺寸符合要求,拔掉检修盒,安上防护罩,恢复踏板;
4. 扶梯长期不用,灰尘的清理
如果扶梯长期不用,必须将扶手带涨紧部分松开,将摩擦轮下的压带轮群松开,防止扶手带变形,在使用扶梯前应对扶手带进行重新调整。
a) 扶手带涨紧装置的调整方法及步骤:
1) 松开螺栓A、B和螺母D;如图4
2) 松开螺母C,使涨紧装置沿E向移动,使扶手带松弛状态。
3) 扶手带调整完成后,拧紧螺栓A、B和螺母D。

图4
标准运行时:
1) 扶手带不应过度松弛,下行时上转向端部扶手带可拉出10~15mm。
2) 测量两托轮之间扶手带垂度,使其垂度值为5~10mm;
a) 压带装置的调整:
(如图5)松开螺母A,使压带轮群处于松弛状态,避免扶手带变形及扶手带表面有压痕。
标准运行时:
1) 螺母A,当提升高度小于4500mm时X=115mm;当提升高4500~6000时X=105;
2) 扶梯上行,在下部水平段测定扶手带的停止力是否大于40kgf;
3) 停止力若不到40kgf,适当涨紧弹簧。
4) 扶手带运行速度与梯级运行速度偏差为0~+2%。

图5
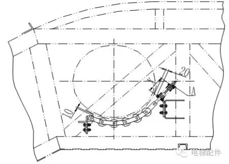
a) 曳引链条的调整方法:
扶梯长期不用应将梯级曳引链保持松开状态;
(如图6)松开螺母A和B,使曳引链条轮处于松弛状态,避免链条轮变形;

图6
标准运行时:
1) 开关动作灵敏,开关触板固定良好且开关在开关触板中心;
2) 检查配线和配线端子接触是否良好;
3) 检查涨紧弹簧的尺寸应为涨紧状态时比自然状态缩进20-30mm,现场可根据实际情况进行调整;
b) 灰尘的清除:
1) 检查梯级上是否有异物,应及时清理掉;梯级表面是否有变形;
2) 用吸尘器将可吸除的灰尘吸一遍,吸除不净的用抹布、毛刷、铲刀清除;
3) 用毛刷和抹布对曳引机和控制柜的灰尘进行清理;
4) 卸下连续几个梯级,用洗油清洗梯路和导轨,清理不掉的用铲刀铲除,清洗后用抹布擦拭干净;
5) 保持自动扶梯的整体外观清洁。
